Startseite

Allgemeine Informationen

Das Dorf Gantikow, heute Ortsteil der fünf Kilometer südöstlich gelegenen Stadt Kyritz in der Ostprignitz, liegt an der alten Landstraße von Kyritz nach Pritzwalk. Südlich des Ortes, über einen Abzweig von der Landstraße zu erreichen, steht das Gutshaus an einem angerartigen Platz, um den eingeschossige Wohnhäuser in lockerer Anordnung stehen.

Bereits in der ersten Hälfte des 14. Jahrhunderts bestanden in Gantikow zwei Rittersitze und ein Wohnhof im Besitz der Familie von der Weide. Diese verkaufte ihren Besitz infolge wirtschaftlicher Schwierigkeiten im Jahre 1657 an die Familie von Platen, die zu den einflussreichsten Familien der Prignitz gehörte und darüber hinaus wichtige Funktionen im brandenburgisch-preußischen Staat bekleidete. Die Familie von Platen verkaufte das Anwesen 1872 an die bürgerliche Familie Neubauer, die es ihrerseits im Jahre 1926 an eine Frau Döpke verkaufte, die das Gebäude bis 1945 besaß.

Die Kernsubstanz des Gutshauses entstammt dem 18. und dem frühen 19. Jahrhundert, die heutige Gestalt ist jedoch durch den im Jahre 1877, kurz nach dem Erwerb des Gutes durch die Familie Neubauer, erfolgten umfassenden Umbau geprägt, im Rahmen dessen das Gebäude auch sein Mansarddach erhielt. Weitere Veränderungen erfolgten um 1910 mit dem Einbau der beide Geschosse prägenden neobarocken Balustertreppe. Das Gutshaus ist somit ein anschauliches Beispiel eines Umbaus im späten 19. und frühen 20. Jahrhundert mit dem bewussten Rückgriff auf traditionelle Bauformen.

Die Fassade des Hauses ist in ihrer Gliederung original, der die Fassade gestaltende Freskenzyklus ist jedoch weniger als zwanzig Jahre alt. Er wurde von der Malerin Katharina Zipser in der Tradition byzantinischer Fresken geschaffen. Frau Zipser wurde 1931 in Hermannstadt / Sibiu in Siebenbürgen geboren und lebt und arbeitet in München. Sie ist hat in Rumänien die Technik des Fresko erlernt und praktiziert und ist vom orthodoxen Patriarchat in Bukarest autorisierte Kirchenmalerin. In Gantikow bot sich ihr die lang gesuchte Gelegenheit, diese alte Technik zu unterrichten und mit überwiegend interessierten Laienmalern im Rahmen mehrerer aufeinanderfolgender Sommerkurse praktisch umzusetzen.

Nach dem Zweiten Weltkrieg diente das Gutshaus zuerst als Flüchtlingsunterkunft, kam dann in Gemeindeeigentum und diente, wie viele Gutshäuser in Brandenburg und Mecklenburg-Vorpommern, als kommunales Zentrum, das das Gemeindebüro, die örtliche Verkaufsstelle, die Schule, den Kindergarten, das Arztzimmer, die Küche der Landwirtschaftlichen Produktionsgenossenschaft sowie Wohnungen beherbergte. Im Jahre 1990 wurde das Gebäude an die Kyritzer Wohnungsbaugesellschaft übertragen, die es 1997 an einen Kunstverein verkaufte, der im Erdgeschoß einige Zeit Galerieräume betrieb und von dem es Open Houses erwarb.

Seit 2011 hat Open Houses das Gebäude Schritt für Schritt instandgesetzt und ausgebaut. Zunächst wurden im Hauptflügel Beherbergungsmöglichkeiten und Seminarräume geschaffen, wobei darauf Wert gelegt wurde, die Atmosphäre des Hauses zu erhalten und nicht durch unnötige Modernisierungen zu beeinträchtigen.

Gegenwärtig wird auch der Seitenflügel ausgebaut, wodurch die sanitären Anlagen deutlich erweitert werden und sich die Kapazität des Hauses auf sechzig Betten erhöht. Zudem wird perspektivisch ein Bereich des Hauses behindertengerecht gestaltet und durch den Einbau einer zweiten Küche die separate Nutzung durch mehrere Gruppen möglich werden.

Beschreibung des Gebäudes und der Räumlichkeiten

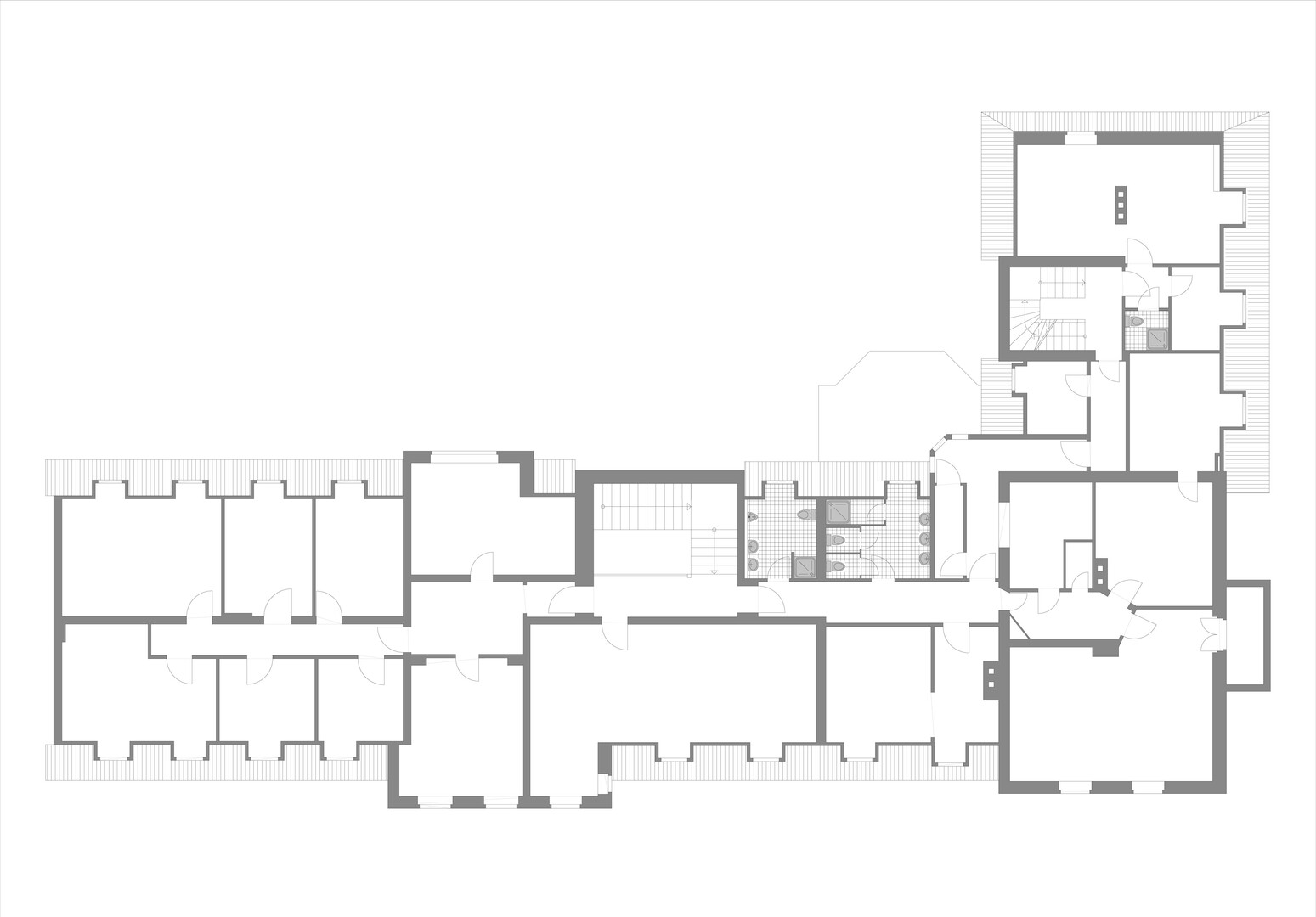
Ab Sommer 2016 stehen im Haus 60 Betten in Zwei- bis Sieben-Bett-Zimmern zur Verfügung, wobei die meisten Zimmer über zwei, drei oder vier Betten verfügen. 52 Betten befinden sich im Obergeschoß, die übrigen Betten im Erdgeschoß.

Im Obergeschoß befindet sich der Großteil der sanitären Einrichtungen – jeweils ein Raum mit drei Duschen und mehreren Waschbecken für jedes Geschlecht sowie jeweils ein Toilettenraum mit zwei bzw. drei Toiletten für jedes Geschlecht.
Weitere Toiletten für beide Geschlechter befinden sich im Erdgeschoß.

Zudem befinden sich in beiden Geschossen des Seitenflügels jeweils ein Raum mit Toilette, Dusche und Waschbecken, wobei der im Erdgeschoß so gestaltet ist, dass er auch für Behinderte geeignet ist.

Die Selbstversorgerküche und der Speiseraum befinden sich im Erdgeschoß, beide sind durch eine Schiebetür voneinander getrennt. Direkt neben der Küche liegt der Ausgang zum Garten. Die Ausstattung der Küche ist einfach, aber zweckmäßig, es steht Geschirr für 60 Personen zur Verfügung.

Der Preis für die Übernachtung beträgt 10 € je Person, bei Aufbettungen 7 €.

Die Preise beinhalten die Mitnutzung des gesamten Außengeländes des Gutshauses, insbesondere des Gutshausgartens mit idyllischen Sitzecken und dem Lagerfeuerplatz.


Aufgrund der Größe des Hauses besteht die Möglichkeit, dass mehrere Gruppen sich zur gleichen Zeit im Haus aufhalten, die dann Küche und sanitäre Anlagen gemeinsam nutzen. Eine Begegnung unterschiedlicher Gruppen ist Bestandteil des Konzeptes von Open Houses. Wird die Anwesenheit einer weiteren Gruppe nicht gewünscht, ist dies im Belegungsvertrag zu vermerken. In einem solchen Falle beträgt die Mindestbelegung 55 Personen.


Im Erdgeschoß sind zudem mehrere Seminar- und Gruppenräume gelegen – großzügige, helle Räume mit Südfenstern und Dielenfußboden: Im östlichen Bereich des Hauptflügels liegen der Große Gruppenraum und der Saal, die knapp bzw. reichlich 60 Quadratmeter groß sind, sowie der Kleine Gruppenraum mit einer Größe von 36 Quadratmetern. Der Mittlere Gruppenraum mit einer Größe von 59 Quadratmetern liegt im westlichen Bereich des Hauptflügels und ist sowohl von der Diele als auch vom Speiseraum zugänglich – bei Gruppen ab 40 Personen kann er deshalb kostenlos als Speiseraum genutzt werden.

Das Haus ist mit Öfen ausgestattet, davon sind drei historische Kachelöfen.

Organisatorisches

Auf den Betten befinden sich frische Laken. Nach Vereinbarung im Belegungsvertrag können Bettdecken und Kopfkissen geliehen und eigene Bettwäsche mitgebracht oder aber Steppdecken, Kopfkissen und Bettwäsche geliehen werden. Alternativ können Schlafsäcke mitgebracht werden.


Sämtliche Preise verstehen sich als Preise für eine Nutzung durch Jugendgruppen, Gruppen gemeinnütziger Träger, gemeinnützige Bildungsveranstaltungen, Mitglieder der NaturFreunde Deutschlands und andere gemeinnützige Gruppen. Bei privater Nutzung wird ein Aufschlag von 15 % sowie entsprechend den gültigen gesetzlichen Regelungen zusätzlich Umsatzsteuer in Höhe von 7 % erhoben.

Um ökologisch bewußtes Verhalten zu unterstützen, wird der Verbrauch an Betriebskosten (Wasser, Abwasser, Elektroenergie) für das jeweilige Gebäude in der Zeit des Aufenthaltes der Gruppe durch Ablesen der Zähler ermittelt und ebenso wie die verbrauchten Festbrennstoffe der Gruppe in Rechnung gestellt. Bei mehreren gleichzeitig anwesenden Gruppen werden die Kosten im Verhältnis der jeweils anwesenden Personenzahlen beider Gruppen umgelegt.


Wiewohl die von Open Houses betriebenen Gebäude und Ensembles primär Selbstversorgerhäuser sind, besteht auch die Möglichkeit zu Halb- oder Vollpension. Ein lokales Unternehmen, mit dem Open Houses seit mehreren Jahren kooperiert, liefert zu günstigen Preisen reichhaltige und schmackhafte Speisen ins Haus und kommt auch speziellen Wünschen nach vegetarischer, veganer oder schweinefleischloser Kost gern nach. Wir vermitteln gern den entsprechenden Kontakt.

Grundstück

An das Gutshaus schließt sich der Gutspark mit altem Baumbestand an, der ursprünglich bis zum etwa 200 Meter entfernten See reichte. Inzwischen befindet sich zwischen dem Gutshausgarten und dem See ein Fremdflurstück – der Garten ist dennoch mit einer Fläche von mehr als 2000 Quadratmetern immer noch recht groß, und, da er vom Dorfanger durch das Gutshaus getrennt ist, für intensive seminaristische Gruppenarbeit ideal.

An- und Abreise

Gantikow befindet sich etwa fünf Kilometer von Kyritz entfernt, das an der Bahnstrecke (Berlin -) Neuruppin – Pritzwalk liegt. Von Kyritz aus besteht stündlicher Zugverkehr in beiden Richtungen.

Von Kyritz aus kann man bequem mit dem Fahrrad nach Gantikow fahren, ein neu gebauter Radweg läuft parallel zur Landstraße. Der Weg ist kaum befahren, so dass er auch zu Fuß genutzt werden kann.

Das ortsansässige Taxiunternehmen ist unter 033971 – 6690 zu erreichen. Der Transport mit dem Kleinbus des Unternehmens kostet pro Fahrt etwa 15 €.

Mit dem Fahrzeug erreicht man Gantikow recht gut über die Autobahn A 24 Berlin – Hamburg. Von Berlin aus fährt man bis zur Abfahrt Neuruppin, dann über Wusterhausen und Kyritz; von Hamburg bis zur Abfahrt Pritzwalk, dann die Landstraße Richtung Kyritz; von Rostock bis zur Abfahrt Herzsprung und dann Richtung Kyritz.

Die Anreise kann am Anreisetag ab 17.00 Uhr erfolgen. Kann die gesamte Gruppe nicht anreisen, so muss ein Verantwortlicher spätestens bis 19.00 Uhr anreisen, um die Schlüssel in Empfang zu nehmen.

Die Rückgabe der Schlüssel und die Übergabe des Gebäudes müssen am Abreisetag nach Reinigung der Räume bis 11.00 Uhr direkt an den von Open Houses Beauftragten erfolgen.

Frühere Anreise und spätere Abreise können im Belegungsvertrag gegen Aufpreis vereinbart werden.

Umgebung

Das Gutshaus liegt am südlichen Ende des Dorfes Gantikow. Im nördlichen Teil des Dorfes steht die mittelalterliche Dorfkirche, die einen Besuch wert ist. Führungen macht eine Nachbarin, die unweit des Hauses wohnt. Im Sommer finden in unregelmäßigen Abständen Abendmusiken in der Kirche statt.

Direkt am Ende des ehemaligen Gutsparkes beginnt der Gantikower See, ein etwa fünfhundert mal dreihundert Meter großer See mit guter Wasserqualität, der sowohl über einen für Kinder geeigneten sehr flachen Bereich in Gutshausnähe als auch über naturnahe, tiefe Bereiche an der dem Gutshaus abgewandten Seite verfügt.

Die Landschaft um Gantikow ist flach, in Teilen sanft hügelig, so dass sie sich sehr gut zum Radfahren und Fußwandern eignet. Die vier Kilometer entfernt verlaufende Regionalbahn ermöglicht kombinierte Touren Bahn / Fahrrad bzw. Bahn / Fußwandern. Drei Kilometer östlich von Gantikow beginnt das Waldgebiet um den Ober- und den Untersee, tief in die Landschaft eingeschnittene Seen mit sehr klarem Wasser.

Im Umkreis von etwa zwanzig Kilometer kann man die Mumie des Ritters Kahlbutz in der Dorfkirche zu Kampehl (16 km), das Brandenburgische Landesgestüt in Neustadt / Dosse (18 km) und die Klosteranlage zu Heiligengrabe (21 km) besichtigen, wenig weiter das Otto-Lilienthal-Museum in Stölln (31 km), die Fontanestadt Neuruppin (34 km) und das Schloß Rheinsberg (43 km).

Belegungsanfrage

Belegungsanfrage per email

Anmeldeformular / Belegungsvertrag

Belegungsvertrag für Gäste(gruppen)



Hauptfassade

Straßenansicht um 1920

Gartenansicht um 1920

Gartenansicht heute

Gartenseite - Detail

Hauptfassade - Detail

Haupttreppe

Haupttreppe

Räume im Erdgeschoß

Unterkunftsraum

Unterkunftsraum

Sanitärbereich

Erdgeschoß

Obergeschoß

Garten

Pavillon im Garten

Gantikower See

Badestelle
 







KONTAKT KARTE DER PROJEKTORTE NETZWERKE & PARTNER SPENDER & FÖRDERER IMPRESSUM